JOIN US FOR AN ON-SITE AUCTION PREVIEW
THURSDAY – MARCH 5th FROM 5:00 P.M. – 7:00 P.M.
ABSOLUTE AUCTION
SATURDAY – MARCH 14th, 2026 – 10:30 A.M.
ESTATE OF JOHN J. DONNELLY
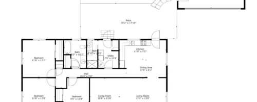
3 BEDROOM / 2 BATH BRICK HOME
w/ 24′ X 28′ DETACHED GARAGE
29.32 ACRES (+/-) IN 9 TRACTS
HOME TRACT – 6 RESIDENTIAL TRACTS
& 2 LARGER TRACTS IN THE REAR
1340 SPENCER HAMILTON ROAD
LORETTO, KY 4003
CLICK ON PHOTO TO VIEW ALL PHOTOS
AUCTIONEER’S NOTE
Everybody loves L.A. (Loretto Area)…It is one of the most highly sought after areas of Marion County in beautiful Central Kentucky close to the Award-Winning West Marion Elementary School, the historic Maker’s Mark Distillery, the Bourbon Trail & so much more…Plus lakes, rivers & recreation are close by…And Lebanon. Bardstown, Louisville & Lexington are just a short drive away! This property offers stunning panoramic views of the gorgeous surrounding countryside…Just outside the city limits of Loretto! Real estate like this very rarely comes on the open market at absolute auction…Don’t miss the opportunity to purchase this exceptionally located home & 29.32 acres (+/-) at your own price…
AT ABSOLUTE AUCTION ON SATURDAY, MARCH 14th AT 10:30 A.M.!
THE HOME & GARAGE (TRACT 1 – .91 ACRE +/-)
This beautiful brick home measures 58′ X 29′ featuring 1,682 square feet (+/-) of nice living area all one one floor! Let’s take the grand tour starting with the spacious & cozy living room brightened by a trio of sunlight enticing windows that warm up the soft carpet to make an exceptional room to host, gather & entertain! Flowing from the living room is a large eat-in kitchen equipped with plenty of nice-looking cabinetry & a dining area (includes the refrigerator, stove & microwave)…Down the hallway is a sizable laundry room complete with a handy storage closet (includes the washer & dryer) and a full bathroom featuring a nice walk-in shower. Continuing the tour down the hallway is a beautiful 2nd full bathroom caressed with elegant white ceramic tile flooring, a stylish ceramic tile vanity & a white ceramic tiled tub/shower…Plus 3 generously sized bedrooms all with plush carpeting! You will also enjoy having the 24′ X 48′ detached garage nearby to protect your vehicles from the elements which also offers ample storage & workspace! Outside…The home has a couple of nice shade trees in the front yard & colorful landscaping around the home…Plus you have your choice between watching the world go by from the relaxing covered front porch…Or the rear patio looking out on those breath-taking views! Note: As an added bonus…The heating & cooling systems were replaced in 2024, the water heater was replaced in 2017 & the 3-dimensional asphalt shingle roof was also replaced in 2017!
THE LAND (TOTAL OF 29.32 ACRES +/-)
The entire property features a total of 29.32 acres (+/-) located in one of the most desirable areas in all of Marion County (we can’t stress that enough!) The home tract is .91 acre (+/-) which leaves 28.41 acres (+/-) for 6 residential building lots (Tracts 2 through 7)…Plus 2 larger tracts in the rear (Tract 8 & Tract 9) featuring gently rolling land & lots of trees…These 2 tracts would also be perfect for building your new home…Or even the next great subdivision in Loretto! Just think…You can combine Tract 8 & Tract 9 for an impressive spread of land (24.19 acres +/-)…Or make any combination of Tracts 1 through 9 however you want! You have 843.17′ of road frontage to work with…Plus all 9 tracts have road frontage on Spencer Hamilton Road with approved entrances.
THE TRACTS
TRACT 1 (HOME TRACT) – .91 ACRE (+/-): This tract features the 58′ X 29′ (1,682 square feet +/-) 3 bedroom / 2 bath brick home & 24′ X 48′ (1,152 square feet +/-) detached garage / workshop. It has 155.91′ of frontage on Spencer Hamilton Road.
TRACT 2 – .69 ACRE (+/-): Residential building lot with 88.92′ of frontage on Spencer Hamilton Road. Deemed feasible for conventional, or modified gravel and pipe, or chamber septic systems.
TRACT 3 – .71 ACRE (+/-): Residential building lot with 96.01′ of frontage on Spencer Hamilton Road. Requires a lagoon system or fill and wait for a septic system.
TRACT 4 – .69 ACRE (+/-): Residential building lot with 92.31′ of frontage on Spencer Hamilton Road. Deemed feasible for conventional, or modified gravel and pipe, or chamber septic systems.
TRACT 5 – .71 ACRE (+/-): Residential building lot with 102.26′ of frontage on Spencer Hamilton Road. Deemed feasible for conventional, or modified gravel and pipe, or chamber septic systems.
TRACT 6 – .71 ACRE (+/-): Residential building lot with 103.18′ of frontage on Spencer Hamilton Road. Deemed feasible for conventional, or modified gravel and pipe, or chamber septic systems.
TRACT 7 – .71 ACRE (+/-): Residential building lot with 103.11′ of frontage on Spencer Hamilton Road. Requires a lagoon system or fill and wait for a septic system.
TRACT 8 – 11.45 ACRES (+/-): Larger tract with 51.45′ of frontage on Spencer Hamilton Road. This tract features gently rolling land with trees in the rear. Note: A preliminary septic system site evaluation is not conducted on tracts over 5 acres.
TRACT 9 – 12.74 ACRES (+/-): Larger tract with 50.02′ of frontage on Spencer Hamilton Road. This tract features gently rolling land with trees in the rear. Note: A preliminary septic system site evaluation is not conducted on tracts over 5 acres.
ENTRANCES – UTILITIES – SEPTIC SYSTEM SITE EVALUATIONS – SOILS MAP
All 9 tracts have been approved with their own private entrance by Marion County Road Department Supervisor, Jimmy Rakes. Each tract also has convenient access to water (Marion County Water District) & electricity (Inter-County Energy). You can check out the Preliminary Septic System Site Evaluations for Tracts 1 through 7 and the Solis Map on our website: www.thelancasteragency.com.
ORDER OF SALE
1st OFFERING
To be offered AS A WHOLE, Tracts 1 through 9 grouped together totaling 29.32 acres (+/-).
2nd OFFERING
ROUND 1: TRACT 1 (HOME TRACT) to be offered individually BY THE TRACT.
ROUND 2: TRACT 2, TRACT 3, TRACT 4, TRACT 5, TRACT 6 & TRACT 7 to be offered BY THE TRACT utilizing the ‘PICK & CHOOSE’ auction method.
The highest bidder will have the priority to select the tract, or contiguous tracts desired at that price per tract.
This process will continue until all 6 tracts have been selected in this round.
ROUND 3: TRACT 8 & TRACT 9 to be offered BY THE ACRE utilizing the ‘PICK & CHOOSE‘ auction method.
The highest bidder will have the priority to select Tract 8, or Tract 9, or both tracts at that price per acre.
This process will continue until both tracts have been selected in this round.
NOTE
THE AUCTION IS NOT FINAL UNTIL BOTH OFFERINGS HAVE BEEN COMPLETED.
THE REAL ESTATE WILL BE SOLD PER THE OFFERING REALIZING THE MOST MONEY FOR THE SELLER.
TERMS & CONDITIONS
* A 10% Buyer’s Premium will be added to all winning bids to determine the final sales and purchase price.
* Any Purchaser of a real estate tract will pay a 20% deposit of the final sales and purchase price the day of the auction.
The balance will be due on or before April 14, 2026.
* The 2026 Real Estate Property Taxes will be pro-rated as of the date of deed.
INSPECTIONS
* The real estate, appliances & all improvements are being sold ‘AS IS‘ with no warranties, guarantees, or assumptions of liability. Inspections are invited & encouraged.
For any inspections of this property, please call The Lancaster Agency, Inc. at 270-692-6748, or Irvin Abell at 270-402-3575.
* The home was built prior to 1978 and may have the potential for lead based paint. Lead based paint inspection,
and any other inspections desired by prospective purchasers, must be completed prior to the auction.
ANNOUNCEMENTS MADE THE DAY OF THE AUCTION SUPERSEDE ANY AND ALL PRIOR ANNOUNCEMENTS, DOCUMENTATION, BROCHURES, SIGNS, ADVERTISING, OR STATEMENTS, WHETHER ORAL, WRITTEN, OR OTHERWISE,
REGARDLESS OF WHO MADE THEM OR WHEN THEY WERE MADE.
CHARLES E. LANCASTER, JR. – PRINCIPAL BROKER/AUCTIONEER
CHARLES E. LANCASTER, SR. – AUCTIONEER
IRVIN ABELL – APPRENTICE AUCTIONEER
TREY ABELL – APPRENTICE AUCTIONEER
















































