2655 St. Francis-Raywick Road – St. Francis

NOTE: ALL INFORMATION IS DEEMED RELIABLE. HOWEVER, ANY PROSPECTIVE PURCHASER MUST RELY UPON THEIR OWN VERIFICATION. THE LANCASTER AGENCY, INC. DOES NOT WARRANT OR GUARANTEE, WHETHER EXPRESS OR IMPLIED, ANY INFORMATION OBTAINED FROM A THIRD PARTY.

2655 St. Francis-Raywick Road – St. Francis

2655 St. Francis-Raywick Road St. Francis, KY 40062

Sale Pending

$289,900

  • 001
  • 002
  • 003
  • 004
  • 005
  • 006
  • 007
  • 008
  • 009
  • 010
  • 011
  • 012
  • 013
  • 014
  • 015
  • 016
  • 017
  • 018
  • 019
  • 020
  • 021
  • 022
  • 023
  • 024
  • 025
  • 026
  • 027
  • 028
  • 029
  • 030
  • 031
  • 032
  • 033
  • 034
  • 035
  • 036

Property ID :

 RH-40218-property

Share

Added to Favorite

Favorite

Print

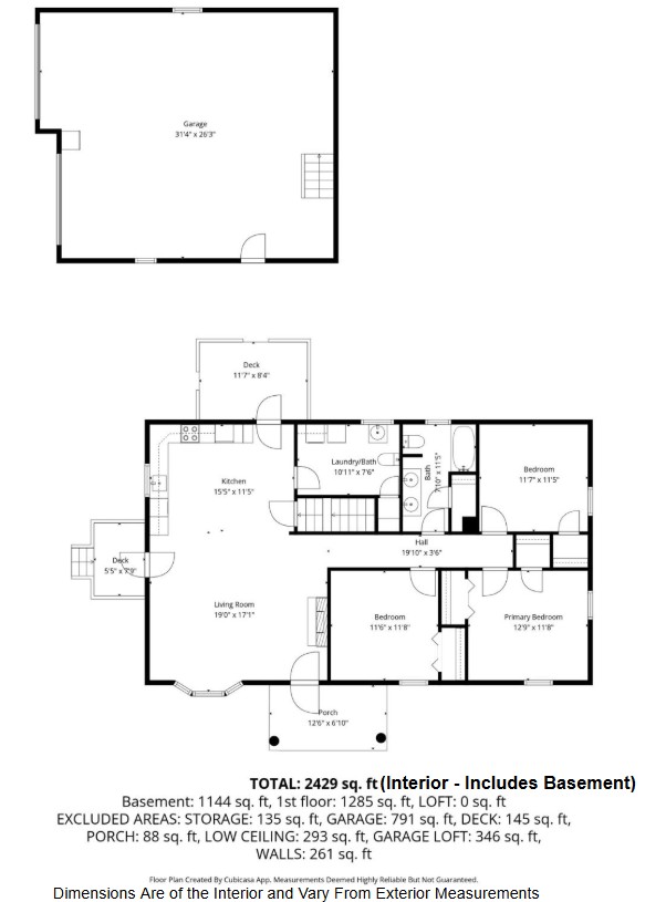
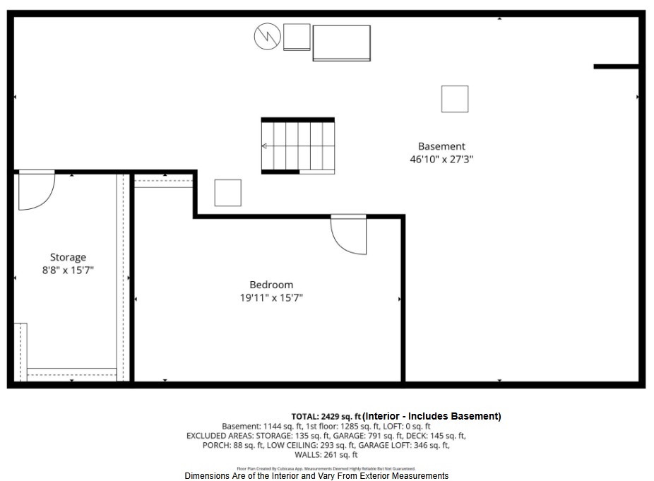
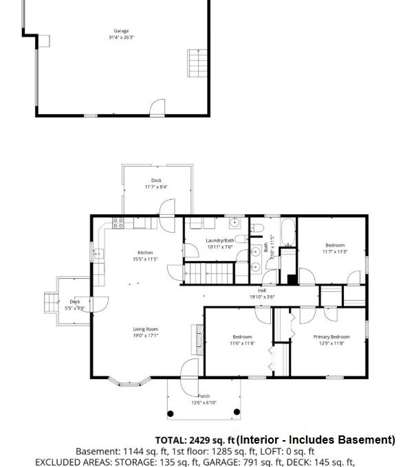
Bedrooms

4 (1 in Basement)

Bathrooms

1.5

Garage

Detached 2-Car

Area

1423 Sq. Ft +/-

Lot Size

background Layer 1 1.01 Acres +/-

Description

CLICK ON LINK FOR 3-D TOUR—> https://kuula.co/share/collection/7M8fJ?logo=-1&info=0&fs=1&vr=1&sd=1&initload=0&thumbs=1

Welcome to this adorable brick ranch with a basement nestled out in the countryside and offering amenities the entire family will enjoy! Come on in to be welcomed by a spacious yet cozy living room showcasing a glowing hardwood floor brightened by a charming bay window. Then the decorative fireplace enhances the cozy ambiance while the ornate crown molding elevates the room. Flowing from the living room is a snazzy kitchen sporting a smooth tile floor and a lovely selection of hearty cabinetry. The kitchen is also equipped with spiffy appliances that include a stainless-steel stove and refrigerator. Then rounding out the kitchen is a quaint dining area. Connected to the kitchen is a convenient utility room featuring a nice ½ bath and a handy storage closet. Making our way down the hall is where you will find 3 generously sized bedrooms highlighted by more of that beautiful hardwood. Accompanying these bedrooms is a full bath complete with a sleek dual vanity, nifty linen closet, and a refreshing tub/shower combo caressed by soothing tile. The tour continues down to the basement where you are greeted by a snuggly den great for gathering around with friends and family. The basement also has another bedroom to give the home a total of 4 bedrooms while also providing additional utility such as that always needed storage space, shelter during inclement weather, and rec areas to have things like a home gym or options for even more fun and entertainment. Outside… it only gets better as the home comes with an awesome detached garage primed to be the ultimate mancave/hangout spot as this garage is climate controlled with a window A/C unit and a wall heater with plenty of room to host and entertain (aka PARTY!) Not to mention… the garage also has a sweet loft providing even more storage space! Companioned next to the garage is a splash of fun with the above-ground pool souped-up with a relaxing sundeck. As we mentioned earlier… the home is nestled out in the country meaning you can enjoy absolutely gorgeous views of the rolling countryside right from your backyard!  Speaking of which… you are on a pristine 1.01-acre (+/-) spread of land that gives plenty of space for the kids and pets to play. And don’t forget about the 12’ X 16’ storage shed wired with electric and supplemented with lean-to’s. This place has it all and call BRIANNA GRIBBINS to get it all today!

NOTE: WE DO NOT PAY COMMISSION ON SELLER PAID CLOSING COSTS AND PRE-PAID ITEMS
LISTING BROKER: 2.25%   SELLING BROKER: 2.25%

Similar Properties

197 Scenic Hill Drive – Lebanon

CLICK ON LINK FOR 3-D TOUR—> https://kuula.co/share/collection/7Mzpm?logo=-1&info=0&fs=1&vr=1&sd=1&initload=0&thumbs=1 Here is a…

Bedrooms

3

Bathrooms

2

Area

1436 Sq. Ft +/-

For Sale, New Listing

$279,900